6854 Iris Circle

6854 Iris Circle was built in 1925 by owner Watson D. Otis of 1616 Cahuenga Blvd. Otis was married to socialite Helen Somers, who also built 6851 Iris Circle in 1923 (see previous post). Otis used this home as a rental until it was sold shortly after. This home is entered through a door surrounded by a wall and there is no garage or driveway so parking is on the street.

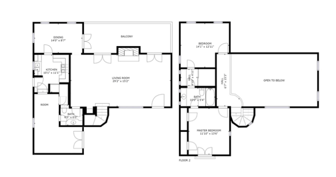
There is a secluded courtyard that is surrounded by a wall where the front door to the residence is located.

Upon entering the house, there is a formal grand living room with 15 foot high rough-hewn beam ceilings, narrow-plank oak wood floors and a tall picture window. French doors open to a covered veranda.



A dining room, also with beam ceilings, opens up to a veranda. The vintage kitchen has been remodeled. There is also a den/office on the first floor with half a bathroom.



Stairs going up to the second floor leads to a balcony that leads to two bedrooms and one bathroom.



With access from the courtyard, there is also a one-bedroom suite that has a bathroom and kitchen, which has been rented out through the years.

Between 1929-1931 famed pianist Charlotte Earle resided at 6854 Iris Circle. Earle, who was recently divorced from Ferdinand Earle, moved here with her 70 year old father, Paul Herman. Twenty year old, Hope Harper, rented the guest house. Harper was an actress who had an uncredited role as a townsperson in Swiss Miss in 1938. Ferdinand P. Earle was born in 1878 in New York City and was a screenwriter and director, known for directing A Lover’s Oath in 1925 with Ramon Navarro. Most of his work was in the art department and he worked on Ben Hur (1925) and his last film was Lillom with Charles Boyer in 1934. Charlotte filed for divorce in 1926 citing physical abuse. They had married in 1915 in Brooklyn, New York. According to Charlotte, a few years after they were married, Ferdinand stabbed her in the hand with a pair of scissors while she was helping him in the Biograph Studio. In March of 1923, he beat her with a clothes hanger repeatedly until it broke. On another occasion at their home at 2140 Highland Ave, he hit her in front of his female cousin and told her to get a divorce. The cousin tried to help, but he hit her too. On July 20, 1925, their first born son died. She tried to leave him but he always threatened to kill her. Their other son was artist/designer Eyvind Earle who later worked for Disney.

The two divorced by 1928 and she got $55 per week alimony and he got the house on Cahuenga and custody of their 10 year old son who was reportedly in poor health. A year later she accepted $75,000 (two-thirds) from the sale of the home because she did not want to be greedy. In 1929, she opened a music studio in the Iris Circle home and gave piano lessons. Earle is pictured below when she performed in vaudeville.

Between 1936-1938, musician Nathan Liebenbaum and his wife, Minette, rented 6854 Iris Circle. Russian-born Liebenbaum was a cellist for the Los Angeles String Quartet. He became a US citizen in 1929 while living at 2769 Waverly Drive (down the street where the famed Mansion murders occurred in 1969). On August 18, 1944, during the Second World War, Liebenbaum played the cellist part in the orchestra at Metro-Goldwyn-Mayer (MGM) in Los Angeles, conducted by George Stoll, recording “I Fall In Love Too Easily “, the film score for the film musical Anchors Aweigh, starring Frank Sinatra. After the end of the war, Liebenbaum worked as a solo cellist at Eagle-Lion Studios for four years.
Following the Liebenbaums departure, soprano singer Georgia Stark moved into 6854 Iris Circle with her husband, Hippolyte de Bernard and lived here from 1938-1939. Stark was a gifted singer and started with the Broadway Children’s Orchestra at the age of 15 in 1919. In 1921, she was selected to sing a solo on New Year’s Eve at the Universal Theater. Known as a Coloratura Soprano singer, she went to Europe for four years to study and sang in Milan. Upon her return to the United States, she sang as a soloist at the Hollywood Bowl in 1931. During this time, she worked with concert director Aldo Franchetti and his own opera company. She sang at the opening of the Greek Theater.

In 1932, she decided to marry her voice teacher, Hippolyte de Bernard. The French born instructor was 50 years old and previously married- she was only 28 and it was her first marriage. The couple also resided at another Whitley Heights residence (demolished for the 101 Freeway in the 1950s) at 6616 Odin Street in 1942. De Bernard died a year later at the age of 61.

Stark continued to be involved with the entertainment industry and was named on the Actor’s Guild board in 1953. In 1963, her second husband, actor Dick l’Estrange died. L’Estrange was one of Mack Sennett’s original Keystone Cops. At the time of his death, Stark was a music casting director at MGM. Perhaps Starks most notable moment was in 1938 while living at 6854 Iris Circle. Stark was an acquaintance in the music business with 21 year old Eloise Spann. Spann filed a civil suit against motion picture casting director Milton Beecher and 50 other MGM studio employees for five million dollars. Spann claimed that Beecher raped her and the studio was covering it up. She alleged that she approached him on August 26, 1936, at the studio about some work and he persuaded her to follow him to his apartment for a voice test. Subsequently, he got her drunk and then forced her to have sex with him.

Stark was called to testify on her behalf during a very public trial in 1938. It was discovered during the trial that as a result of the rape, Spann got pregnant and was forced to have an abortion or the 32 year old movie producer would blacklist her from the movie industry. In September of 1938, the judge exonerated Beecher and the case was dismissed. Spann’s movie career was over and she quietly went back home to Indianapolis. Spann ended up getting married to John C. Terry and they had one son before she passed away in Miami in 1960. The autopsy report indicated that she had hung herself. A documentary called Girl 27 was aired in 2007 centering around Patricia Douglas, another actress who also sued MGM studios for tricking her and 100 other young girls into attending a stag party where she was allegedly raped. The case of Eloise Spann was discussed in the documentary.

Between 1940-1942 composer Aldo Franchetti and his wife, Ethel resided at 6854 Iris Circle. The Italian composer also worked on several movie soundtracks including, Nice, Girl? in 1941. Franchetti was another fan of Whitley Heights, residing at 6630 Whitley Terrace in 1930 and 6691 Emmet Terrace between 1942-1944.
According to several real estate websites, famed director Otto Preminger lived at 6854 Iris Circle, which is very possible since he often traveling back and forth from Hollywood and New York. Born in Wischnitzer, Bukovina in 1905, Preminger entered the United States via Mexico which his wife, Marion Mill in 1935. The following year Preminger filed for US citizenship at the age of 30 while residing on Roxbury Drive in Beverly Hills. His first film, The Great Love, was made in Germany in 1931 and when he moved to the United States, he was able to direct immediately. He also had minor acting parts starting in 1942. Between 1944 through the early 1950s, Preminger owned a home at 333 Bel Air Road, but he had gotten into some financial problems by the end of the 1940s and rented the home out. Preminger was definitely a “ladies man” even during his three marriages. With early signs of balding, he always kept his head shaved which may have been an attractive feature for the opposite sex. After Preminger and his wife, Marion, moved into the Bel Air mansion, he began his multiple affairs.

One of his first documented affairs was with a Burlesque stripper named Gypsy Rose Lee (pictured below). They met in Hollywood in 1944 when she was in town filming Belle of the Yukon. They met at the home of producer William Goetz, who was Otto’s mentor. They dated on the sly as she just left her husband, Alexander Kirkland, which may have been a marriage of convenience as he was gay. However, Gypsy found out she was pregnant and left him abruptly to return to New York without a word. On December 11, 1944, she gave birth to a son, Erik, who took Kirkland’s last name. When Otto found out, Gypsy told him that she wanted to raise Erik alone and that he must never reveal that he was Erik’s father. It was not until 1966, when Preminger was 60 years old and Erik was 22, that father and son finally met and had a relationship until Preminger’s death in 1986.

In May 1946, Marion asked for a divorce in Mexico City, after meeting a wealthy (and married) Swedish financier, Axel Wenner-Gren, who was blacklisted by the Allies during the war. The Premingers’ divorce ended smoothly and speedily. Marion did not seek alimony, only personal belongings. Axel’s wife, however, was unwilling to grant a divorce. Marion returned to Otto and resumed appearances as his wife, and nothing more. So now the the endless charade of dates and hookups begin in 1947 with actresses Natalie Draper (Marion Davies niece), Lynn Bari, Joan Crawford, and Lizabeth Scott, and Greer Garson (all pictured below in said order).

In January of 1948, Preminger got into a bar fight with screenwriter Ivan Goff. Goff entered a restaurant with Natalie Draper (pictured above in photograph one) as they claimed to be engaged. Apparently Preminger would often “recycle” his ladies and he did not like the fact Natalie was with someone else. Preminger was having dinner with actress Marie Johnson when Goff and Draper walked in. Goff and Draper knew about Preminger’s temper so they retreated to the bar where Preminger followed them in and the fight pursued. One month later, Goff and Draper would wed in Arizona. Besides Johnson, Preminger dated the following actresses in 1948: Maria Palmer (below photo 1), Arlene Dahl (photo 2), Joan Crawford (above photo 3), Gene Tierney (below photo 3), model Patricia Vaniner, Myrna Dell (below photo 4), Shelley Winters (below photo 5), Rhonda Fleming (below photo 6), Florence Marly (below photo 7), Marie Windsor (below photo 8), Patricia Dane (below photo 9), Amanda Blake, Ava Gardner, Hedy LaMarr, and Paulette Goddard.

The rest of the 1948 ladies, Amanda Blake, Ava Gardner, Hedy LaMarr, and Paulette Goddard are pictured below:

In January 1950, Preminger had to rent his Bel Air home out due to financial issues with the IRS. He may have lived on Iris Circle during this time, but also had a condo near Sunset Strip. His dating carousel continued in 1950 with actresses: Jan Sterling (below photo 1), Marlene Dietrich (photo 2), Joan Fontaine (photo 3), Myrna Dell (photo 4), Hedy LaMarr (photo 5), Nancy Guild (photo 6), Linda Darnell (photo 7), and Greta Garbo.

In 1951, Preminger’s dating slowed down and by the end of the year, he married artist Mary Gardner. A few years later in 1954, Preminger would have a very taboo affair with actress Dorothy Dandridge while they filmed Carmen Jones together. The secret affair would go on for approximately four years. Preminger would tell her how to act, what to wear, and what movies she should star in. An offer was made to Dandridge for the featured role of Tuptim in “The King and I” (1956). Preminger advised her to turn it down, as he believed it unworthy of her. She later regretted taking his advice. In October of 1956, Gardner announced that she was seeking a divorce. In December of 1957, Gardner filed for divorce citing “cruel and inhuman conduct” and claimed Preminger had relations with three other women. Surprisingly, Dandridge was not named in the lawsuit. However, costume designer, Hope Bryce, was the first name. Gardner alleged that Preminger was having an affair with Bryce for the past three years. (Preminger would marry Bryce when his divorce became final). The other two women were London models who Preminger stayed with at a London hotel on two different occasions. Below is Preminger and Bryce in July of 1959, when they were forced to make an emergency landing on a Pan Am flight into New York.

In June of 1958, Preminger filed a cross-complaint against Gardner stating that she had been having an affair with British actor Michael Rennie for the past three years. A very public and messy divorce ensued. In February of 1959 during the court hearing, London model, Pat Williams, aka Betty Patricia Ellis, stated Preminger paid her to spend the night with him in a hotel room in London. In October of 1956, she was introduced to him by a worker at the Dorchester Hotel. Williams indicated she also got paid to give the story to two tabloid magazines. The trial was suddenly postponed and Preminger’s lawyer was worried that he would have major bad press so they ended up settling the divorce quickly. In March of 1960 the divorce became final and Preminger married Bryce in Israel while they were there filming Exodus. He was 53 years old; she was 29.

Preminger directed his second film, in 1936, in the United States. From there, he famously directed (and had minor acting roles) in many successful films including; Margin for Error (1943), starring Joan Bennett and Milton Berle, Laura (1944), with Gene Tierney and Dana Andrews, Fallen Angel (1945), with Alice Faye and Dana Andrews, Daisy Kenyon (1947), with Joan Crawford and Dana Andrews, Where the Sidewalk Ends (1950), with Dana Andrews and Gene Tierney, Angel Face (1952), with Robert Mitchum and Jean Simmons, River of No Return (1954), with Robert Mitchum and Marilyn Monroe, Carmen Jones (1954), with Harry Belafonte and Dorothy Dandridge, The Man with the Golden Arm (1955), with Frank Sinatra and Kim Novak, Saint Joan (1957), with Jean Seberg, Porgy and Bess (1957), with Sidney Poitier and Dorothy Dandridge, Anatomy of a Murder (1959), with James Stewart and Lee Remick, and Exodus (1960), with Paul Newman and Eva Marie Saint. Apparently, sometimes Preminger was very demanding and hard to work with. Actress Lana Turner was originally cast to play the female lead in Anatomy of a Murder. However, they had a major disagreement about Turner’s wardrobe that she withdrew from making the film. Preminger had three academy award nominations for The Cardinal (Best Director) in 1963, Anatomy of a Murder (Best Picture) in 1959, and Laura (Best Director) in 1944. Preminger was nominated 26 times for various awards and won six.

Preminger died in his home on the Upper East Side of Manhattan in 1986, aged 80, from lung cancer while suffering from Alzheimer’s disease. He was survived by three children; his son, Erik, and twins Mark William and Victoria Elizabeth, from his marriage to Hope Bryce. Preminger was cremated and his ashes are in a niche in the Azalea Room of the Velma B. Woolworth Memorial Chapel at Woodlawn Cemetery in the Bronx.

6854 Iris Circle last sold for $1.5 million in July of 2020 and is not part of the Whitley Heights Historic Preservation. However, it appears that any updates that were made were kept similar to the original home.
Leave a comment